| |
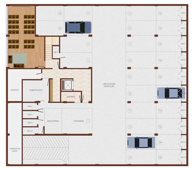
xxxxxxNivel Semisótano
- Salón comunal diseñado para su recreación, dotado con proyector de alta definición, sonido envolvente de siete canales y 1200 watts de potencia y reproductor de dvd’s de alta definición.
- Hall de ascensor con acceso directo y controlado a zona de garajes.
- Espacio para bicicletero y parqueadero especial para discapacitados.
- Doce parqueaderos dobles y dos sencillos, quince depósitos para residentes.
- Subestación eléctrica, cuarto contadores, tanque de agua y equipo de presión.
- Cuarto de basuras
|
|

|
|
| |
|
|
|
|
| |

|
|
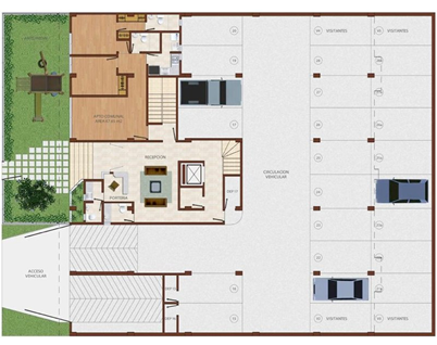
xxxxxxNivel Primer Piso
- Zona de recreación con acceso controlado.
- Amplia zona de recepción, sala de espera amoblada y baño para visitantes.
- Conserjería dotada con escritorio, casillero, baño y cocineta para el personal.
- Hall de ascensor con acceso directo y controlado a zona de garajes.
- Salón comunal con tres espacios, dos baños y cocineta para uso de la copropiedad.
- Cuatro parqueaderos sencillos para visitantes.
- Ocho parqueaderos dobles y seis sencillos para residentes.
- Tres depósitos para residentes y uno para elementos de aseo y dotación.
|
|
| |
|
|
|
|
| |
xxxxxxNivel Cubierta
- Amplia zona de recreación al aire libre con acceso controlado, pérgola de aluminio, pisos duros y dotada con mesa con parasol, sillas, asador y mesón con poceta para lavado de platos.
- Baño multiservicio.
- Hall de ascensor con parada exclusiva para este nivel.
- Depósito comunal para elementos de terraza.
- Chimenea con baranda de cristal templado.
- Horno microhondas con extractor integrado.
|
|
 |
|
| |
|
|
|
|